Une nouvelle résidence étudiante et une réorganisation du campus en projet pour l’IAV Hassan II à Rabat
Un vaste projet de réaménagement est lancé à l’Institut agronomique et vétérinaire Hassan II (IAV) de Rabat. La première étape concerne la reconstruction de la résidence étudiante, qui accueillera 2.300 lits et divers services modernes, pour un budget prévisionnel de 516 millions de DH.
Le projet d’un nouvel internat pour les étudiants de l’Institut agronomique et vétérinaire Hassan II (IAV) à Rabat se concrétise. Comme révélé par Médias24, l’actuelle résidence, qui héberge plus de 1.500 étudiants, est concernée par une opération d’expropriation. Une nouvelle résidence ainsi qu’un réaménagement global du campus sont désormais prévus.
L’Agence nationale des équipements publics (ANEP) a lancé le marché relatif à la conception architecturale et au suivi des travaux de construction et de mise à niveau du campus de l’IAV. La première tranche, consacrée à la reconstruction de la résidence étudiante, dispose d’un budget prévisionnel de 516 MDH.
Le projet sera implanté sur une parcelle d’environ 25.000 m², à l’extrémité sud-ouest du campus. Réparti en trois blocs d’une hauteur allant de R+8 à R+10, le complexe offrira une capacité de 2.300 lits.
Trois types de logements sont prévus :
- 1.090 chambres doubles
- 100 chambres individuelles
- 20 chambres individuelles adaptées aux personnes à mobilité réduite (PMR)
- 10 suites
Les bâtiments de la résidence étudiante intégreront des espaces collectifs : bureaux, salons d’étage, halls de distribution, niches de lecture et kitchenettes partagées. Le restaurant universitaire, conçu pour accueillir jusqu’à 2.000 étudiants en deux rotations, sera installé au socle de l’un des blocs d’hébergement.
Outre les logements, la résidence proposera :
- des commerces de proximité,
- un centre de santé moderne,
- un espace "Students Hub",
- un pôle artistique et culturel destiné à stimuler la créativité et l’expression.

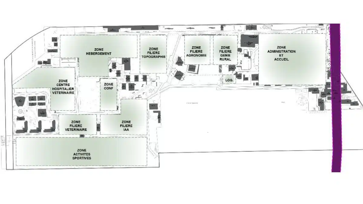
La reconstruction de la résidence n’est qu’une partie d’un plan global de réaménagement du campus de l'IAV, qui se structurera désormais en plusieurs pôles :
- Pôle Accueil & Administration : à l’entrée historique du campus, pour incarner la vitrine institutionnelle.
- Pôles des filières : chaque filière (Vétérinaire, Topographique, Agronomique et Halieutique, Industrie agroalimentaire et Génie rural) disposera de son propre cluster regroupant enseignement, laboratoires et bureaux.
- Centre hospitalier vétérinaire : en lien direct avec la filière vétérinaire, avec un accès indépendant depuis l’avenue Al Melia.
- Centre de conférences et ses dépendances : abritant le centre existant.
- Pôle sportif : avec salle multisport couverte et piscine couverte, regroupés dans la partie sud du campus.
- Pôle résidentiel : nouvelle résidence étudiante.
à lire aussi
Article : Le musée du continent africain devrait ouvrir à la fin de 2027 (Mehdi Qotbi)
Porté par la Fondation nationale des musées, le futur musée du continent africain a franchi une étape décisive. Le président Mehdi Qotbi nous annonce que le plus grand complexe muséal d'Afrique, dont les travaux de gros œuvre ont dépassé 85%, entre dans sa phase finale avant une ouverture au public lors du dernier trimestre 2027.
Article : Le jardinier marocain de Jany Le Pen expulsé vers le Maroc pour séjour irrégulier
Selon une information révélée par Le Parisien, Hatim B., un Marocain de 32 ans qui effectuait des travaux de jardinage chez Jany Le Pen, veuve de Jean-Marie Le Pen, a été expulsé le jeudi 23 avril vers le Maroc. En situation irrégulière en France depuis 2017, il faisait l’objet d’une mesure d’éloignement décidée par le préfet des Hauts-de-Seine.
Article : Maghreb : une visite américaine dans un contexte de pression croissante sur l’Algérie
Annoncée par le département d’État, la tournée de Christopher Landau, du 27 avril au 1er mai, intervient dans un contexte marqué par l’implication croissante de Washington dans le suivi du dossier du Sahara et de ses prolongements onusiens.
Article : Ordre des experts-comptables : le scrutin s’annonce serré (liste)
Le scrutin du 21 mai pour le renouvellement du Conseil national de l’Ordre des experts-comptables met en concurrence 41 candidats pour 11 sièges. Parmi eux, se dégagent des profils issus de grands cabinets internationaux, comme EY, Deloitte, Mazars, BDO, KPMG ou Grant Thornton, des figures expérimentées déjà présentes dans les instances de l’Ordre et des profils plus récents, illustrant les équilibres internes de la profession.
Article : Protection des femmes victimes de violence : lancement officiel de la cellule centrale à Rabat
À Rabat, le ministère de la Solidarité a lancé la cellule centrale de prise en charge des femmes victimes de violence, chargée de renforcer la coordination institutionnelle, de superviser les structures territoriales et d'améliorer l’accompagnement juridique, psychologique et social des victimes.
Article : Bourse de Casablanca : le MASI chute de 1,69%, les volumes grimpent à 667 MDH
La Bourse de Casablanca a clôturé la séance du 24 avril 2026 en baisse, avec un MASI en recul de 1,69% à 18.815,18 points. Les échanges ont atteint 667,11 MDH, dominés par Managem, Minière Touissit et Attijariwafa bank.