ROUND UP. Plateformes de réserves de première nécessité : le point sur le programme dans les 12 régions
Afin de disposer des stocks stratégiques pour la gestion des risques de catastrophes naturelles, le ministère de l'Intérieur a récemment lancé un programme qui vise à doter toutes les régions du Royaume de plateformes régionales de réserves de première nécessité. Emplacement, budget et images.
Il s'agit d'un programme de plusieurs millions de dirhams supervisé par les walis des régions, dont l'objectif est de garantir une gestion efficace des réserves stratégiques en cas de crise et de sécuriser l'approvisionnement local.
Au moment de la publication de cet article, de nombreux appels d'offres concernant les douze régions du Royaume ont déjà été lancés. Ils concernent généralement les gros œuvres, mais aussi les aménagements extérieurs et autres. Certains montrent également à quoi ressembleront certaines plateformes régionales, ainsi que leurs plans. D'autres marchés plus spécifiques vont être lancés dans les prochains jours, dans le cadre de ce même programme, portant notamment sur la voirie et autres.
Dans ce papier, Médias24 vous propose un round up de toutes les informations disponibles à ce jour sur ce programme, à travers des documents publics publiés sur le portail des marchés publics.
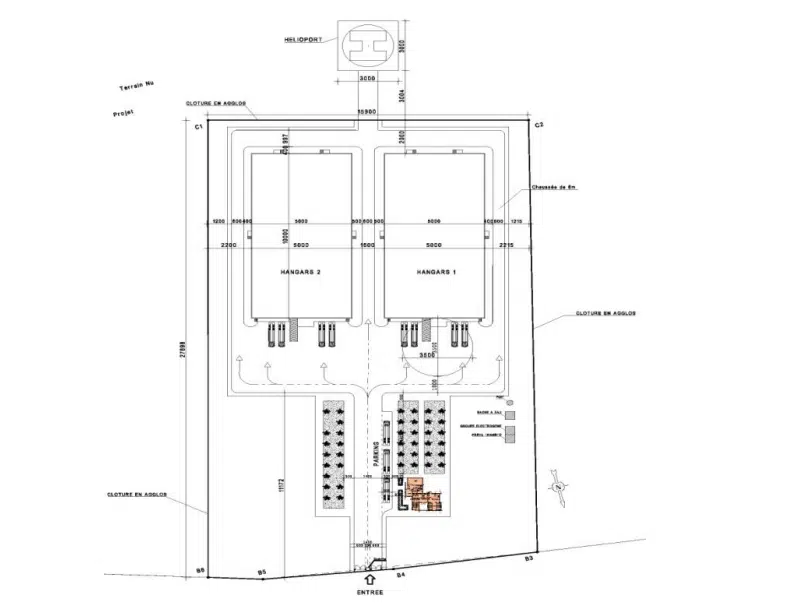
Plus de 110 MDH pour la plateforme de Tanger-Tétouan-Al Hoceima
La plateforme régionale de réserves de première nécessité de la région Tanger-Tétouan-Al Hoceima sera construite dans la ville de Tanger, plus exactement à Douar Daidaât.
Deux grands marchés relatifs à cette région ont déjà été lancés par le ministère de l'Intérieur. Le premier, d'un budget estimé à 27 millions de DH pour un délai d'exécution fixé à 3 mois, porte sur les terrassements généraux et les aménagements extérieurs (voirie, assainissement, réseaux, aires de manœuvres, parking, etc…), ainsi que sur l’ensemble des études d’exécution et des plans de détail des ouvrages.
Une visite des lieux, effectuée le 1er novembre dernier à la suite du lancement de cet appel d'offres, a connu la participation des trois sociétés suivantes : El Hallaoui SARL, GTR SA et Campezo.
Le second marché a trait à la construction de 4 entrepôts et d'une administration à plus de 90 MDH. Il porte notamment sur les travaux de gros œuvres, d'étanchéité, de menuiserie, de peinture et autres.
Voici à quoi devrait ressembler la plateforme de la région TTAH :
La plateforme régionale de Casablanca-Settat sera érigée à Had Soualem
La plateforme de la région de Casablanca-Settat sera quant à elle située à Had Soualem. Deux marchés ont, à ce jour, été mis en ligne par le ministère de l'Intérieur concernant cette région.
Le premier porte sur la voirie et réseaux divers (VRD) ainsi que sur les lots techniques (électricité et électrification, fluides, protection incendie, détection incendie, éclairage public, et aménagement extérieur...). Il est estimé à 38,8 MDH, et son délai d'exécution est fixé à 10 mois.
Le second, estimé à 85,9 MDH, porte sur la charpente métallique de la plateforme et sur les lots architecturaux.
Voici la liste des intervenants dans ce projet, tous visés le 7 octobre dernier :
- Architecte : Agar
- Bureau d’études techniques (BET) : CID
- Bureau de contrôle technique : Tecnitas
- Laboratoire : LPEE
- Topo : Etafat
- Assistant sécurité incendie : Besie
4 entrepôts de 5.000 m2 chacun pour la plateforme régionale de Marrakech-Safi
La plateforme de la région de Marrakech-Safi devrait être prête dans neuf mois. Sa construction devrait coûter près de 130 MDH, rien que pour les gros œuvres.
Située au niveau de la ville nouvelle de Tamansourt, elle sera dotée de quatre entrepôts de 5.000 m2 chacun, d'une administration de 200 m2, d'un local social pour le personnel de 200 m2, d'un puits avec réservoir d'eau, d'aménagements extérieurs et d'espaces verts.
L'architecte de ce projet est Tawfik Bennana. Le bureau 3D concert se charge pour sa part des études techniques.
Voici à quoi devrait ressembler cette plateforme :
21 hectares pour la plateforme régionale de l'Oriental
La plateforme régionale de l'Oriental se situera au niveau de la préfecture d'Oujda-Angad, dans la collectivité Bni Mimoun et Labsara. Elle s'étalera sur une superficie de 21 ha.
Le marché lancé à ce jour par le ministère de l'Intérieur pour cette région porte sur les travaux d'aménagement et de construction de la plateforme pour 60 MDH. Il porte également sur son raccordement hors sites, et sur la construction de deux entrepôts de 5.000 m2 chacun (50 par 100 m), et de 9 m de hauteur.
Ce marché porte aussi sur la réalisation des équipements annexes : une administration de près de 147,98 m², un local pour le personnel de près de 207,68 m², un mur de clôture, forage et bâche à eau...
Voici à quoi ressemblera la plateforme régionale de l'Oriental :
La plateforme de Souss-Massa sera située dans la commune Drarga
Au moins cinq marchés ont été lancés pour doter la région de Souss-Massa d'une plateforme régionale de réserves de première nécessité.
Il s'agit notamment des :
- travaux de gros œuvres pour la construction de la plateforme, dont le budget est estimé à 80,2 MDH ;
- travaux de voirie, réseaux divers et aménagement extérieur, pour 560.000 DH ;
- travaux de gros œuvres et charpente métallique pour 1,3 MDH ;
- travaux d’électrification 2e catégorie pour 2,6 MDH ;
- travaux de voirie, réseaux divers et aménagement extérieur pour 37,3 MDH.
La plateforme de cette région se situera dans la commune de Drarga, préfecture d’Agadir Ida-Outanane, au niveau de la forêt M'seguina.
Les intervenants dans ce projet connus à ce jour sont les suivants :
- Architecte : Driss Dghouli
- BET : STE Roc Sol Ingénierie
- Bureau de contrôle technique : STE Marocaine de contrôle et de présentation
- Laboratoire : LPEE
Voici à quoi ressemble cette plateforme :
Ci-dessous son plan :
Plus de 170 MDH pour la plateforme de Rabat-Salé-Kénitra
En ce qui concerne la plateforme de la région Rabat-Salé-Kénitra, l'architecte et le bureau d'études techniques sont également connus. Il s'agit, respectivement, de Crayon Concept Architecture et de Diagonal Management.
Un marché de plus de 170 MDH a été lancé récemment pour la construction de cette plateforme, constitué de deux tranches :
- La première, ferme, porte sur la construction et l'aménagement des bâtiments, notamment des hangars, l'administration et les locaux communs pour 138,16 MDH. Il s'agit, dans le détail, de :
- quatre hangars d’entreposage ;
- une administration ;
- un bâtiment de locaux communs ;
- une guérite de sécurité ;
- des bâches à eau et locaux techniques ;
- un poste transfo, groupe électrogène...
- La seconde tranche est conditionnelle et porte sur les aménagements extérieurs pour 34,6 MDH : allées carrossables et parking, allées piétonnes et murs de clôture.
Ci-dessous le plan de la plateforme régionale prévue d'être construite dans la région de Rabat-Salé-Kénitra :
Six autres plateformes dans autant de régions
Le ministère de l'Intérieur a également lancé les marchés relatifs à :
- La construction de la plateforme régionale des réserves de première nécessité de Drâa-Tafilalet pour un budget estimé à 56,87 MDH. Celle-ci devra être prête en 8 mois.
- Pour la région de Fès-Meknès, deux marchés sont actuellement en cours. Le premier concerne l'aménagement extérieur pour 19,5 MDH, dont le délai d'exécution est fixé à 5 mois, et le second est relatif aux gros œuvres pour 109,15 MDH, dont la réalisation devrait durer 9 mois. L'architecte de cette plateforme est Meriem Ghandi. Novec se charge des études techniques.
- La réalisation de la plateforme régionale de Laâyoune-Sakia El Hamra pour 57,7 MDH.
- La construction de la plateforme régionale de Guelmim-Oued Noun, au niveau de la préfecture de Guelmim. Voici la liste des intervenants dans ce projet :
- Architecte : Groupement Artchi Concept et Khouyi Amal
- Bureau d’études techniques CITEB (Cabinet international des techniques de bâtiment)
- Bureau de contrôle : Somacep II
- Laboratoire : LPEE
- Assistant à maîtrise d’ouvrage en sécurité incendie : Besie
- Pour la région de Dakhla-Oued Eddahab, deux marchés ont été lancés par l'Intérieur. Le premier porte sur la construction de la plateforme pour 64 MDH, et le second sur les lots techniques et architecturaux, ainsi que les travaux de gros œuvre pour 39,4 MDH.
Voici le plan de cette plateforme :
- La construction de la plateforme régionale de Béni Mellal-Khénifra pour 60 MDH, en 8 mois. L'architecte de ce projet est la société Khalid El Adouli architecte SART, et le BET est Handassa Design.
Voici à quoi elle ressemblera :
À découvrir
à lire aussi
Article : Sahara : l'UE juge l'autonomie sous souveraineté marocaine comme la solution “la plus réalisable”
L'Union européenne a affiché jeudi 16 avril 2026 à Rabat une position nettement plus explicite sur le Sahara marocain, en estimant qu'"une autonomie véritable" sous souveraineté marocaine pourrait constituer "une solution des plus réalisables" pour clore ce différend régional.
Article : DGI. Facturation électronique : lancement en préparation, les détails avec Younes Idrissi Kaitouni
Validation en temps réel, rôle central de la DGI dans la circulation des factures, intégration des systèmes d’information et contrôle renforcé des délais de paiement… La réforme de la facturation électronique se précise, avec un déploiement progressif et un écosystème en cours de structuration.
Article : Réduction des effectifs d’ingénieurs chez Renault. Première réaction de Renault Maroc
En annonçant une réduction de ses effectifs d’ingénieurs dans ses centres de recherche et développement, Renault fait naître des interrogations au Maroc, où le groupe vient de lancer un nouveau centre d’ingénierie en 2025.
Article : Dans le Haut Atlas marocain, l’Observatoire de l’Oukaïmeden se veut un hub scientifique mondial
Derrière ses dômes blancs, l’Observatoire de l’Oukaïmeden s’est mué en quelques années en une véritable machine à découvertes. Fort de plus de 4.700 objets célestes identifiés et de collaborations internationales de haut niveau, il s’affirme désormais comme une infrastructure stratégique, à la croisée de la recherche, de la technologie et de la souveraineté scientifique. Et ce n'est qu'un début.
Article : Dakhla : un mégaprojet de datacenters verts de 500 MW lancé pour asseoir la souveraineté numérique du Maroc
Une convention entre plusieurs institutions publiques acte le démarrage des études chargées de fixer le modèle économique, la gouvernance et les modalités de financement du programme.
Article : Coupe du monde 2026. Ce que disent les chiffres sur les retombées économiques
Le rapport de la FIFA et de l’Organisation mondiale du commerce sur la Coupe du monde 2026 donne une estimation des retombées économiques de la compétition, aussi bien dans les pays organisateurs qu’à l’échelle mondiale. Des projections qui se recoupent sur plusieurs aspects avec celles annoncées en vue du Mondial 2030.









